Property Details

191 Lucas Common NW
Calgary (A2263852)

$929,000
5
4
2,302 ft²
Loading Listing...

Loan Term
Interest Rate
Loan Amount
Annual Tax
Ann. Insurance

* Amounts are estimates only. Final payment amounts may vary.

Description

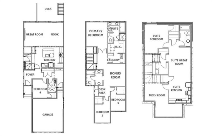
FORMER SHOW HOME ALERT | Nestled in the vibrant, family-friendly community of Livingston, this former Cedarglen Homes show home is the definition of style, function, and craftsmanship. Offering a fully developed legal basement suite, and designer upgrades at every turn, this home is truly one of a kind. Step inside and immediately feel the warmth and sophistication that define this property. The main floor features an open-concept layout with soaring 8' interior doors, glass railing, and luxury vinyl plank flooring that flows seamlessly throughout. The living room steals the spotlight with a vertical shiplap feature wall framing a tiled electric fireplace, creating the perfect blend of modern and cozy. The chef’s kitchen is both stunning and functional, showcasing quartz countertops, two-tone cabinetry, a large central island, and a full working kitchen for extra prep and storage. The dining nook opens onto your oversized deck, perfect for hosting summer BBQs or enjoying quiet mornings in the sun. A main floor bedroom and full bath offer flexibility for guests, an office, or multi-generational living. Upstairs, the design continues to impress. The primary retreat is a true sanctuary featuring a spa-inspired ensuite with a custom tiled shower, soaker tub with tile ledges, and dual sinks, all finished with quartz countertops. The walk-in closet connects directly to the laundry room, making everyday life effortless. Two additional bedrooms each feature their own walk-in closets, and a bonus room plus a built-in desk area provide the perfect spaces for work, play, or relaxation. The fully finished legal basement suite offers even more possibilities - complete with a separate kitchen, living area, bedroom, and full bathroom. This space is ideal for extended family, guests, or rental income. Every inch of this home reflects thoughtful design and quality finishes from upgraded hardware and lighting to its seamless blend of comfort and modern flair. Outside, enjoy your completed oversized deck, perfect for entertaining or taking in the peaceful surroundings of Livingston - one of Calgary’s most dynamic new communities. Residents here enjoy access to the Livingston Hub, a state-of-the-art community centre featuring a skating rink, splash park, gymnasium, tennis courts, and event spaces. You’ll also love the parks, pathways, and playgrounds woven throughout the neighbourhood, plus quick access to Stoney Trail and Deerfoot Trail. If you’ve been searching for a home that combines designer elegance, practical functionality, and unbeatable value, this is it. Move-in ready, meticulous craftsmanship, and absolutely stunning - this Cedarglen show home is ready to welcome its next owner. Book your private showing today and experience what life in Livingston has to offer.

Property details

Basic Info

MLS® #
A2263852
Property Type:
Residential
Subtype:
Detached
Subdivision:
Livingston
Price
$929,000
Sale/Lease:
For Sale
Size:
2,302 sq.ft.
Bedrooms:
5
Bathrooms:
4
Year Built:
2022 (3 years old)

Building Info

New Construction:
Yes
Structure Type:
House
Building Style:
2 Storey
Garage:
Yes
Parking:
Double Garage Attached
Fence:
Fenced
Basement:
Finished, Full, Separate/Exterior Entry, Suite
Features:
Double Vanity, Kitchen Island, No Animal Home, No Smoking Home, Open Floorplan, Pantry, Quartz Counters, Separate Entrance, Soaking Tub, Walk-In Closet(s)
Fireplaces:
1
Inclusions:
Suite appliances: Dishwasher, Electric Oven, Microwave Hood Fan, Refrigerator, Washer/Dryer
Appliances:
Central Air Conditioner, Dishwasher, Electric Stove, Microwave, Range Hood, Refrigerator, Washer/Dryer
Laundry:
In Basement, Laundry Room, Multiple Locations, Upper Level
Exterior Features:
BBQ gas line
Patio/Porch Features:
Deck

Neighborhood Info

Nearby Amenities:
Playground, Schools Nearby, Shopping Nearby, Sidewalks, Street Lights, Tennis Court(s), Walking/Bike Paths

Condo/Association Info

Condo Amenities:
Clubhouse, Party Room, Playground, Racquet Courts, Recreation Facilities
Condo Fee 2:
$473

Lot / Land Info

Lot Size:
0.10 acres
Lot Features:
Back Yard, Rectangular Lot
Zoning:
R-G

Materials & Systems

Roof:
Asphalt Shingle
Exterior:
Brick,Vinyl Siding
Floors:
Carpet, Tile, Vinyl Plank
Foundation:
Poured Concrete
Heating:
High Efficiency
Cooling:
Central Air
Amenities:
Playground, Schools Nearby, Shopping Nearby, Sidewalks, Street Lights, Tennis Court(s), Walking/Bike Paths

Listing Info

Possession:
Immediate,Negotiable
Media & Video

Experience this property!

Virtual Tour
Your Realtor® Team

Realty Aces

Justin Wiechnik
587-899-3773
justin@realtyaces.ca
Ryan Wood
403-828-4645
ryansells247@gmail.com
Damien Berg
403-575-5035
damien@realtyaces.ca

Share This Listing
Related Properties
Mortgage Calculator
Loan Term
Interest Rate
Loan Amount
Annual Tax
Ann. Insurance

* Amounts are estimates only. Final payment amounts may vary.
Listing to Go

Snap this QR to open this listing on your phone!

Apply Online
  • This site is protected by reCAPTCHA and the Google Privacy Policy and Terms of Service apply.

[powr-chat id=55838ce1_1553554440]